Gramar AG Factory Showroom, Bern, Switzerland - interior design, 2023.
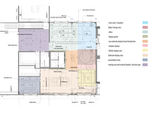
TYPE: Showroom / office LOCATION: Bern, Switzerland YEAR: 2023. SIZE: 320 m2 STATUS: Under Construction. CREDITS: Nemanja Kordić, Irena Nikolić, Ema Stojković Jerinić, Ivana Todosić, Nikola Stevanović Gramar AG is a factory specialized in processing natural stone marmor and ceramic products specializing in elements of interior design. Our task was to enrich the office floor with a new showroom area displaying different materials and material applications. In a proposed layout visitors are guided from the front desk to explore different materials from the raw materials and material palettes and finishes, then to the typical ambients where Gramar's products were aplied: Lobby space, Fireplace aplications, Kitchen island and Bathroom space. Each of the ambients are highlighted with different mesh ceiling application keeping the vibe of the industrial building. The visitor is directed into two more spaces: a space for meetings and a material sample room overlooking the production hall.












