top of page
Projects / Subotica Facade Redesign
TYPE: Residential, Commercial
LOCATION: Subotica, Serbia
YEAR: 2016.
SIZE: /
STATUS: Competition - shortlisted entry.
CREDITS: Nikola Stevanović , Nemanja Kordić, Ema Stojković
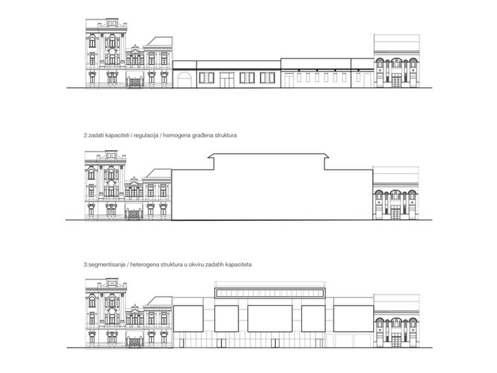
ABOUT: Staro gradsko jezgro Subotice oblikovano je kroz organski razvoj i blokovsku gradnju iz austrougarskog perioda. Takva slojevita arhitektura stvorila je heterogene, ali bogate ulične ambijente. Nova zgrada, koja zamenjuje niz manjih objekata, tretirana je kao segmentisana fasada. Njena podela u manje delove omogućava prirodno uklapanje u okolne strukture, uz ritam lođa i prilagođavanje visinskim vencima suseda. Geometrijska plastika od opeke preuzeta je iz lokalne tradicije i upotrebljena kao savremeni dekorativni element. Donji deo centralnog volumena je razlomljen, dok je pretposlednja etaža povučena, a završni nivo ostavljen kao zaseban volumen. Ovakav pristup obezbeđuje ravnotežu između savremenog izraza i bogatog nasleđa Subotice.

bottom of page





